2018 | Langen | Österreich
Bauaufgabe: Neubau
Bauherr: privat













Ein Haus zum Wohnen und Werken – ein vielseitiger Lebensraum.
Ein Bauernhaus ist ein Ort, an dem gleichermaßen gewohnt, gearbeitet und gelebt wird. Neuinterpretiert und maßgeschneidert auf die Familie, die es mit Leben füllt, verbindet das Wohnbauernhaus regionales Handwerk, authentische, unbehandelte Materialien und eine offene räumliche Struktur und wird zu einem lebendigen Freiraum für Groß und Klein.
Es war der Wunsch der Bauherren den Lebensalltag in einem alten Bauernhaus zu gestalten - in einem Haus, in dem Wohn- und Wirtschaftsbereich, Garten und Vorplatz gleichsam einen vielseitigen Lebensraum formen. Die Suche nach einer Bestandslösung blieb erfolglos und so wurde mit Metaphern zu tradierten Räumlichkeiten ein neues Wohnhaus entwickelt. Das Haus verweist auf traditionelle Raumabfolgen ohne diese zu imitieren und entwickelt aus einem aktuellen Wohnverständnis neuartige typologische Ansätze.
Zwischen Innen und Außen.
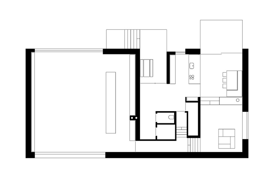
Wo Landschaft und Architektur zusammentreffen entstehen beim Wohnbauernhaus in Langen Räume zwischen Innen und Außen. So wird beispielsweise der Schopf zu einem Außenraum mit Innenraumqualitäten. Eingeschnitten in den länglichen Baukörper bildet dieser Raum ein zentrales Element, das Wohnraum, Eingangsbereich und Gartenzimmer gleichermaßen ist und einen wichtigen Ankerpunkt in der räumlichen Abfolge des Wohnbauernhauses bildet.
Diesem räumlich gefassten Außenraum steht der luftige, sich nach Außen beziehende Innenraum des Wohnbereiches gegenüber, der sich über die gesamte Gebäudehöhe zur umgebenden Landschaft hin öffnet. Die angrenzenden Wiesen, der Garten und der Wohnraum bilden eine untrennbare Einheit, die den Charakter des Innen- und Außenraumes prägt.
Wohnlandschaft.
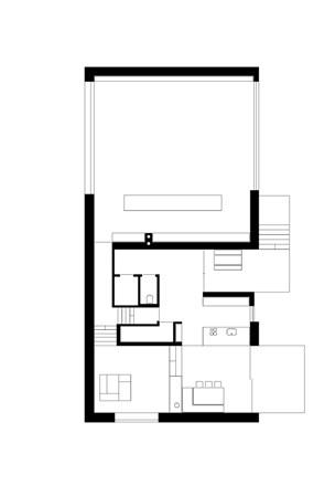
Ausgehend vom Schopf öffnet sich das Erdgeschoss zum Kochbereich. Dieser befindet sich wie traditionell üblich gleich beim Eingang. Mit einer geringen Raumhöhe und dem betonierten Kassettentäfer entsteht eine Übersetzung traditioneller Strukturen in eine neue Form, die den Charakter einer Stube in die Küche holt. Essen, Wohnen und Arbeiten entwickelt sich über die beiden Geschosse als offene Wohnlandschaft um den betonierten Kassettenkern. Durch das Spiel von unterschiedlichen Raumhöhen, kleinen Niveauunterschieden, dem Kamin und einem zentralen Kern wird der offene Wohnraum gegliedert und ermöglicht sowohl gezielte Ausblicke auf die umgebende Landschaft als auch Blickbeziehungen zwischen einzelnen Bereichen der beiden Geschosse. Das Obergeschoss setzt die offene Wohnlandschaft in einer intimeren Form fort und wird zum Spielraum für unterschiedliche räumliche Konstellationen. Der zentrale Kinderraum wird von vier Raumboxen gegliedert, die als plastische Körper auf zwei Ebenen Schlafen, Arbeiten und Stauen beinhalten. Die freie Anordnung im Raum schafft ein durchgängiges Raumgefüge, das sich nachts über Schiebetüren zu klassischen Räumen abtrennen lässt. Es entsteht ein Möglichkeitsraum für die unterschiedlichen Lebensphasen der Familie.
Roh, authentisch, ausdrucksstark.
Naturbelassene Materialien prägen das Wohnbauernhaus sowohl Innen als auch Außen. Sägeraue Böden aus massiven Weißtannebrettern, Sichtbetonoberflächen sowie Möbel aus Rüster und Filz schaffen Wohn- und Arbeitsräume, die unterschiedliche Sinne anzusprechen vermögen. Roh, authentisch und ausdrucksstark beeinflussen die Materialien Charakter und Atmosphäre der Räume. Regionale Wertschöpfung und präzise handwerkliche Umsetzung finden beim Wohnbauernhaus zusammen und geben dem Wunsch nach einem Zuhause zum Wohnen und Werken eine neue Form.
Publikationen








